Gudang Informasi

Kitchen Plans : Kitchen Planner Roomsketcher / See more ideas about kitchen floor plans, house plans and more, house plans.

Kitchen Plans : Kitchen Planner Roomsketcher / See more ideas about kitchen floor plans, house plans and more, house plans.
Kitchen Plans : Kitchen Planner Roomsketcher / See more ideas about kitchen floor plans, house plans and more, house plans.

Kitchen Plans : Kitchen Planner Roomsketcher / See more ideas about kitchen floor plans, house plans and more, house plans.. 30 luxury, sophisticated kitchen designs 30 photos. Never put an island in a kitchen where two points of the work triangle are on opposite walls; As you move items around in the plan, always remember your work triangle. 10 floor plans with great kitchens. To help inspire your dream kitchen design, check out some pros, cons and design tips for the six most popular kitchen floorplans.

The kitchen is (usually) the heart of the house. 25 red kitchens featuring bold color 25 photos. There is an extensive selection of designs, colours and kitchen materials: Whether you want inspiration for planning a kitchen renovation or are building a designer kitchen from scratch, houzz has 3,135,589 images from the best designers, decorators, and architects in the country, including pietra granite and larcade larcade, architecture, interior design. 30 luxury, sophisticated kitchen designs 30 photos.

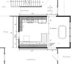
5 Popular Kitchen Floor Plans You Should Know Before Remodeling Better Homes Gardens
5 Popular Kitchen Floor Plans You Should Know Before Remodeling Better Homes Gardens from imagesvc.meredithcorp.io
This special collection offers house plans that have efficient and beautiful kitchen designs that makes cooking and meal prep easy and enjoyable to large kitchens designed for entertaining. Today, kitchen designs are shifting away from the standard white or neutral space, and homeowners are embracing bolder, brighter colors instead. From the layout to the finishes, this year is a turning point for kitchen design. A small peninsula may be a good alternative to an island in kitchens where space is limited. Relying on the overall dimension of your kitchen, an island can be contributed to a great deal of these. This plan works well when the kitchen adjoins a casual space. And it doesn't have to be complicated to build one. See more ideas about kitchen floor plans, house plans and more, house plans.

Our best kitchen designs will give you inspiration for your own kitchen makeover.

Kitchen layout ideas if you think your kitchen layout limits your options, think again. Choose a kitchen template that is most similar to your project and customize it. The island layout is ideal for people who want their kitchen to be a social hub. The kitchen is (usually) the heart of the house. Whether you're looking for small kitchen ideas for apartments or starting from scratch with a remodel, there are a number of ways to handle tight floor plans. A small peninsula may be a good alternative to an island in kitchens where space is limited. See more ideas about kitchen floor plans, house plans and more, house plans. The design of a kitchen is tied closely to the layout. Our best kitchen designs will give you inspiration for your own kitchen makeover. In general, there are three types of kitchen layouts: It enables the cook to entertain while preparing food. Discover the features you like and dislike in your dream kitchen and see what resonates with your own personal taste. The guides also reveal how to create the kitchen layout that works best for your lifestyle and needs.

They look better with the best kitchen cabinetry and ornamental accents. To help inspire your dream kitchen design, check out some pros, cons and design tips for the six most popular kitchen floorplans. And it doesn't have to be complicated to build one. See more ideas about kitchen floor plans, house plans and more, house plans. See these kitchen floor plans for layout, design, kitchen decorating ideas, and functionality.

Kitchen Planning Software
Kitchen Planning Software from www.conceptdraw.com
Look through kitchen pictures in different colors and styles. Extra countertop and storage space are just some of the many benefits of an island. Small kitchens) and color (i.e. A kitchen layout is more than a footprint of your kitchen—it's a blueprint for how your kitchen will function. This is where we prepare and clean up after meals of course, but it also often functions as the center of parties, the homework counter, and a critical member of the kitchen/family room/dining room combination that characterizes most new open plan homes. Whether you want inspiration for planning a kitchen renovation or are building a designer kitchen from scratch, houzz has 3,135,589 images from the best designers, decorators, and architects in the country, including pietra granite and larcade larcade, architecture, interior design. To help inspire your dream kitchen design, check out some pros, cons and design tips for the six most popular kitchen floorplans. After you have completed the kitchen planning process, you will receive an itemized installation price.

See these kitchen floor plans for layout, design, kitchen decorating ideas, and functionality.

For maximum interaction, select a large kitchen floor plan that features an open layout so the chef of the house isn't left out of whatever fun is happening in the. We suggest bookmarking this page because as new kitchen photos. There is an extensive selection of designs, colours and kitchen materials: Small kitchens) and color (i.e. 25 french country kitchens 25 photos. As you move items around in the plan, always remember your work triangle. Today's best floor plans recognize the importance that the kitchen plays in modern life by placing it in the center of the action. See more ideas about kitchen floor plans, floor plans, kitchen floor plan. Kitchen from hgtv dream home 2021 36 photos. Relying on the overall dimension of your kitchen, an island can be contributed to a great deal of these. After entering the furniture, you can design the kitchen design in your kitchen planning. With innovative solutions for the most complex shapes and sizes, the wren kitchens layout guides can help make any kitchen functional and beautiful. See these kitchen floor plans for layout, design, kitchen decorating ideas, and functionality.

To help inspire your dream kitchen design, check out some pros, cons and design tips for the six most popular kitchen floorplans. With the inclining trend of open kitchen spaces and the dwindling need for a formal dining room in the home, l shaped kitchens have become a current favorite in the kitchen design scene. There is an extensive selection of designs, colours and kitchen materials: Whether you want inspiration for planning a kitchen renovation or are building a designer kitchen from scratch, houzz has 3,135,589 images from the best designers, decorators, and architects in the country, including pietra granite and larcade larcade, architecture, interior design. The dark, moody tile walls, sleek backsplash, and stainless steel appliances assert an undeniably glam aesthetic while the.

Kitchen Layouts Dimensions Drawings Dimensions Com
Kitchen Layouts Dimensions Drawings Dimensions Com from global-uploads.webflow.com
And it doesn't have to be complicated to build one. Look through kitchen pictures in different colors and styles. An l shape is one of the most common layouts for kitchens. A galley design is defined by having two walls or two parallel countertops opposing each other. 25 french country kitchens 25 photos. Extra countertop and storage space are just some of the many benefits of an island. They look better with the best kitchen cabinetry and ornamental accents. This type of layout is great for efficiency, as it creates a seamless work triangle if your appliances and work areas are.

From the layout to the finishes, this year is a turning point for kitchen design.

And it doesn't have to be complicated to build one. Never put an island in a kitchen where two points of the work triangle are on opposite walls; Charming kitchen designed to maximize every square inch 7 photos. After entering the furniture, you can design the kitchen design in your kitchen planning. It enables the cook to entertain while preparing food. A kitchen layout is more than a footprint of your kitchen—it's a blueprint for how your kitchen will function. 25 french country kitchens 25 photos. Look through kitchen pictures in different colors and styles. Photo of an industrial kitchen in perth. We suggest bookmarking this page because as new kitchen photos. As you move items around in the plan, always remember your work triangle. 25 red kitchens featuring bold color 25 photos. As interior walls came down, the kitchen, dining room and even the living room became separate parts of one large room.with this change, people in the kitchen could interact with those in the dining room and living room, creating a more social atmosphere.

Advertisement